平屋×3LDK×32坪|充実した家事スペース!家事動線の良い間取り|No.1-29
当ページのリンクには広告が含まれています。

充実した家事スペースと家事動線で家事ラクな間取りです。

玄関から水回りまでの回遊動線が便利!
目次
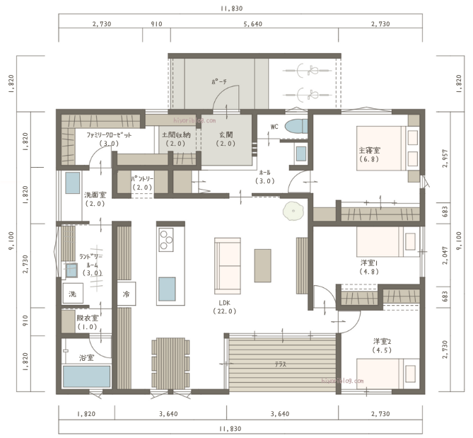
間取り図
Point
- 充実した家事スペースと家事動線で家事ラク!
- LDKと一体的につながるテラス
- 回遊できる間取り


107.65㎡(32.57坪)
間取りのPoint



この間取りのポイントです。
家事動線
キッチン裏に水回りが並ぶ、家事動線の良い間取りです。
広めのランドリールームで室内干しもラクラク。乾いた洗濯物はそのままファミクロへ。
ペニンシュラキッチンでキッチン回りも回遊でき、キッチン横にはパントリーもあります。
帰宅動線
玄関から土間収納・ファミクロを通って洗面室→LDK抜けることができる、帰宅動線も良い間取りです。



帰宅後の片付けをしながらLDKへ!
テラス
LDKと繋がる中庭のようなテラス。
開放感のある明るいリビングです。
類似の間取り
家事動線の良い平屋3LDKの間取りです。
あわせて読みたい




平屋×3LDK×30坪|家事ラク&フレキシブル!回遊性の高い平屋の間取り
回遊性の高い平屋の間取りです。 回遊動線で家事もスムーズ! フレキシブルに使えて楽しい間取りです。 間取り図 Point 回遊性の高い間取り フレキシブルに使える子ども…
あわせて読みたい




平屋×3LDK×33坪|帰宅動線の良い平屋の間取り|No.1-2
回遊できる帰宅動線(ただいま動線)のある平屋の間取りです。 家事動線も良い間取りです♪ 間取り図 Point 玄関から続く帰宅動線が便利な間取り 家事動線の良い間取り …
あわせて読みたい




平屋×3LDK×28坪|プライバシーを保ちつつリビングに集まりやすい間取り
プライバシーの確保にも配慮しつつ、家族とコミュニケーションをとりやすい平屋の間取りです。 30坪未満で水回りや収納も充実しています。 間取り図 Point 適度にプライ…



おうちづくりの参考になりましたら嬉しいです。
掲載している間取り図は、すべて個人的な趣味の範囲で作成・公開しているものであり、専門資格の責任を伴うものではありません。従って、掲載内容の正確性・適用性について保証するものではなく、実際の設計・施工等に使用することはできません。法律や構造の検証検討等についても行っておりません。
実際に建築する際には、各法律や条令等に基づき、実際の土地や建築工法等様々な要件を考慮した上での計画・設計が必要です。掲載しているすべての間取り図はあくまで参考アイデアとしての範囲でご利用の上、ご自身及び実際に請負される設計士様等の責任にてご判断ください。
掲載している間取りを閲覧・ご利用されたことによって発生したいかなるトラブル・損害等につきましても、当方は一切の責任を負いません。
免責事項及び著作権等につきましてはこちらをご覧ください。

